9851 MOONBEAM LANE

9851 Moonbeam Lane, Saint Paul (Woodbury), 55125, MN

FEATURES

DETAILS

The one you've been waiting for: an end unit with two bedrooms, two bathrooms, and a two car garage! This townhome is in a super convenient Woodbury location, within minutes of all the major shopping areas. The interior was just updated with fresh paint and new carpet, and the natural light in this end unit is so nice. You will love to escape to the sunroom or cozy up to the gas fireplace! This property has a primary suite with a walk-in closet and private bath with a large tile-in shower. The garage is super sized with additional space in the back for all the extras (fridge, freezer, etc)! Don't miss out on this opportunity!

INTERIOR

  • Bedrooms: 2

  • Fin ft² / Living Area: 1251 ft²

  • Below Ground Living: N/A

  • Bathrooms: 2

  • Above Ground Living: 1251ft²

  • Basement Details: None,

  • Appliances Included:

EXTERIOR

  • Air Conditioning: Central Air

  • Garage Spaces: 2

  • Construction Materials: N/A

  • Foundation Size: 1251ft²

  • Unit Amenities:

    • Patio
    • Sun Room
    • In-Ground Sprinkler
    • Primary Bedroom Walk-In Closet
  • Heating System:

    • Forced Air

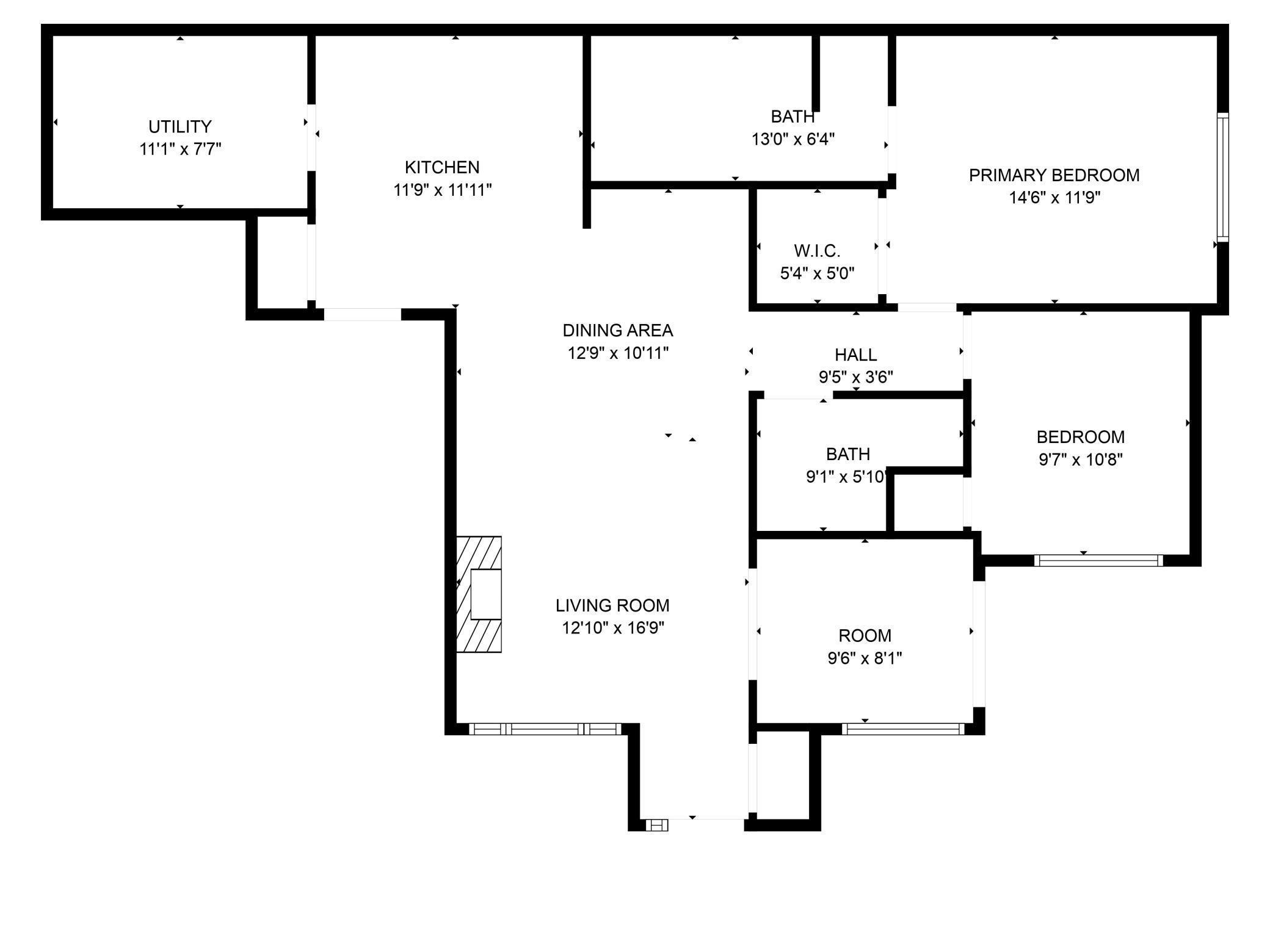
ROOMS

Main Size ft²
Living Room 13x15 169 ft²
Dining Room 6x7 36 ft²
Kitchen 11x12 121 ft²
Sun Room 8x10 64 ft²
Bedroom 1 12x14 144 ft²
Bedroom 2 9x11 81 ft²

LOT

  • Acres: N/A

  • Lot Size Dim.: zero lot line

  • Longitude: 44.9372

  • Latitude: -92.906

  • Zoning: Residential-Single Family

FINANCIAL & TAXES

  • Tax year: 2025

  • Tax annual amount: $2,687

MISCELLANEOUS

  • Fuel System: N/A

  • Sewer System: City Sewer/Connected

  • Water System: City Water/Connected

ADDITIONAL INFORMATION

  • MLS#: NST7791952

  • Listing Brokerage: Keller Williams Rlty Integrity* Agency Icon

ID: 4030313
Published: August 22, 2025
Last Update: August 22, 2025
Views: 11