7636 40TH STREET

7636 40th Street, Oakdale, 55128, MN

FEATURES

DETAILS

This home is under construction and will be completed in January 2026. This new two-story home showcases a modern design with a walkout basement. On the main-level Great Room and dining room are beautiful vaulted ceilings, which is complemented by a kitchen with a center island and a flex space that offers endless possibilities. The luxe owner’s suite and two secondary bedrooms are located on the uppermost level, while a fourth bedroom ideal for overnight guests is situated on the lower one along with an additional bathroom. Ask about how to qualify for $5,000 in savings with the use of the Seller's Preferred Lender!

INTERIOR

  • Bedrooms: 4

  • Fin ft² / Living Area: 2328 ft²

  • Below Ground Living: 746ft²

  • Bathrooms: 3

  • Above Ground Living: 1582ft²

  • Basement Details: Finished, Walkout,

  • Appliances Included:

EXTERIOR

  • Air Conditioning: Central Air

  • Garage Spaces: 3

  • Construction Materials: N/A

  • Foundation Size: 1582ft²

  • Unit Amenities:

    • Kitchen Window
    • Porch
    • Walk-In Closet
    • Vaulted Ceiling(s)
    • Washer/Dryer Hookup
    • In-Ground Sprinkler
    • Paneled Doors
    • Kitchen Center Island
    • Primary Bedroom Walk-In Closet
  • Heating System:

    • Forced Air

ROOMS

Main Size ft²
Family Room 16 x 13 256 ft²
Dining Room 16 X 8 256 ft²
Kitchen 11 X 11 121 ft²
Flex Room 10 X 10 100 ft²
Upper Size ft²
Bedroom 1 14 x 14 196 ft²
Bedroom 2 13 x 10 169 ft²
Bedroom 3 12 x 11 144 ft²
Laundry n/a 0 ft²
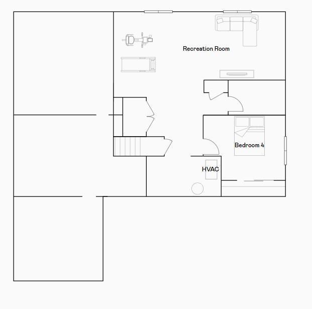
Basement Size ft²
Recreation Room 27 X 16 729 ft²
Bedroom 4 10 X10 100 ft²

LOT

  • Acres: N/A

  • Lot Size Dim.: TBD

  • Longitude: 45.0058

  • Latitude: -92.9459

  • Zoning: Residential-Single Family

FINANCIAL & TAXES

  • Tax year: 2025

  • Tax annual amount: N/A

MISCELLANEOUS

  • Fuel System: N/A

  • Sewer System: City Sewer/Connected

  • Water System: City Water/Connected

ADDITIONAL INFORMATION

  • MLS#: NST7810081

  • Listing Brokerage: Lennar Sales Corp Agency Icon

ID: 4169844
Published: October 01, 2025
Last Update: October 01, 2025
Views: 1