704 HOLLY AVENUE

704 Holly Avenue, Saint Paul, 55104, MN

DETAILS

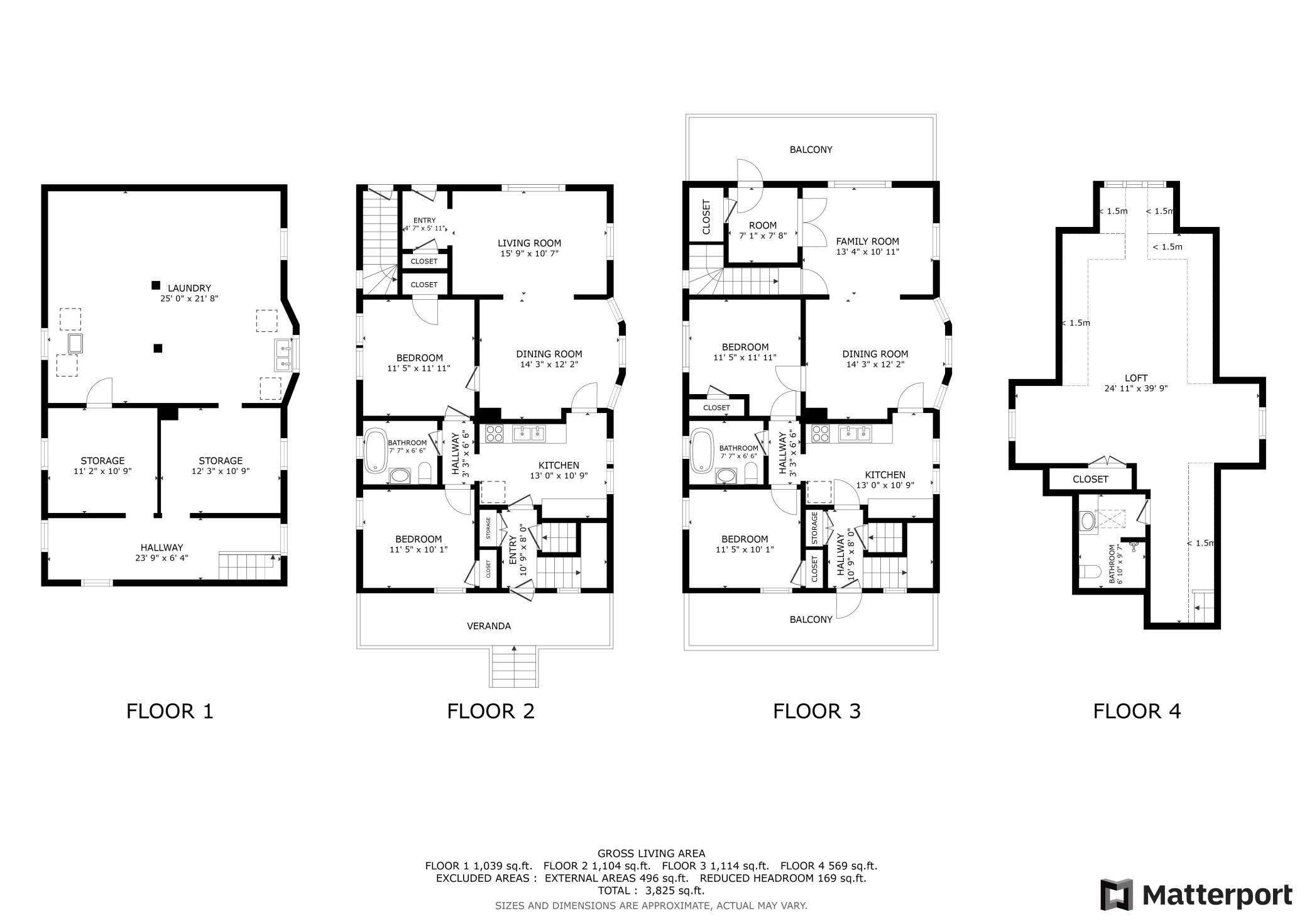
Spectacular fully restored historic Victorian duplex with a classic 2.5 stories set up. The upper unit is a spacious 2 bedroom / 2 bath with large, finished loft and the lower unit is a comfortable 2 bedroom / 1 bath. Located in a quiet neighborhood just 2-3 blocks off iconic Summit and Grand Avenues. Both units feature beautiful hardwood floors throughout, original 1912 built-in buffets, spacious outdoor porches/balconies and bright natural light. The property recently underwent a complete two-year restoration which included a new roof, furnace, water heater, flooring, cabinetry, lighting, plumbing and electrical systems. Each unit has its own laundry in basement with new washers and dryers. Outside, the fully fenced yard and rear patio make for an ideal outdoor living space. A four-car detached garage provides ample off-street parking, and an artist’s loft above the garage offers creative space and additional storage.

INTERIOR

  • Bedrooms: N/A

  • Fin ft² / Living Area: 2787 ft²

  • Below Ground Living: N/A

  • Bathrooms: N/A

  • Above Ground Living: 2787ft²

  • Basement Details: Block, Storage Space, Unfinished,

  • Appliances Included:

EXTERIOR

  • Air Conditioning: N/A

  • Garage Spaces: 4

  • Construction Materials: N/A

  • Foundation Size: 1039ft²

  • Unit Amenities:

  • Heating System:

    • Baseboard

LOT

  • Acres: N/A

  • Lot Size Dim.: 40x120

  • Longitude: 44.9429

  • Latitude: -93.1299

  • Zoning: Residential-Multi-Family

FINANCIAL & TAXES

  • Tax year: 2025

  • Tax annual amount: $5,614

MISCELLANEOUS

  • Fuel System: N/A

  • Sewer System: City Sewer/Connected

  • Water System: City Water/Connected

ADDITIONAL INFORMATION

  • MLS#: NST7770941

  • Listing Brokerage: Hagen Real Estate LLC Agency Icon

ID: 3872166
Published: July 10, 2025
Last Update: July 10, 2025
Views: 24