6412 XENIUM LANE

6412 Xenium Lane, Maple Grove, 55311, MN

DETAILS

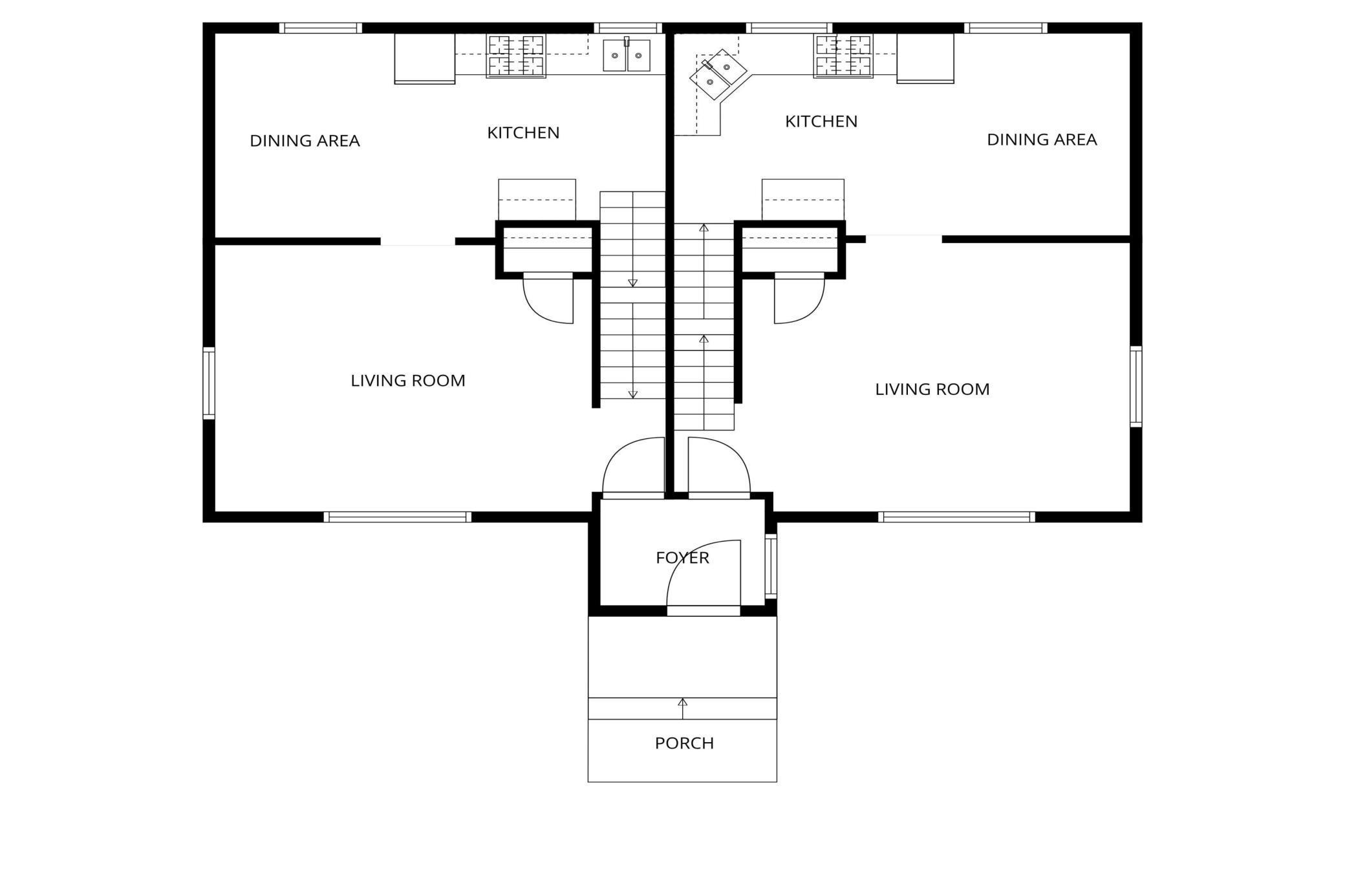
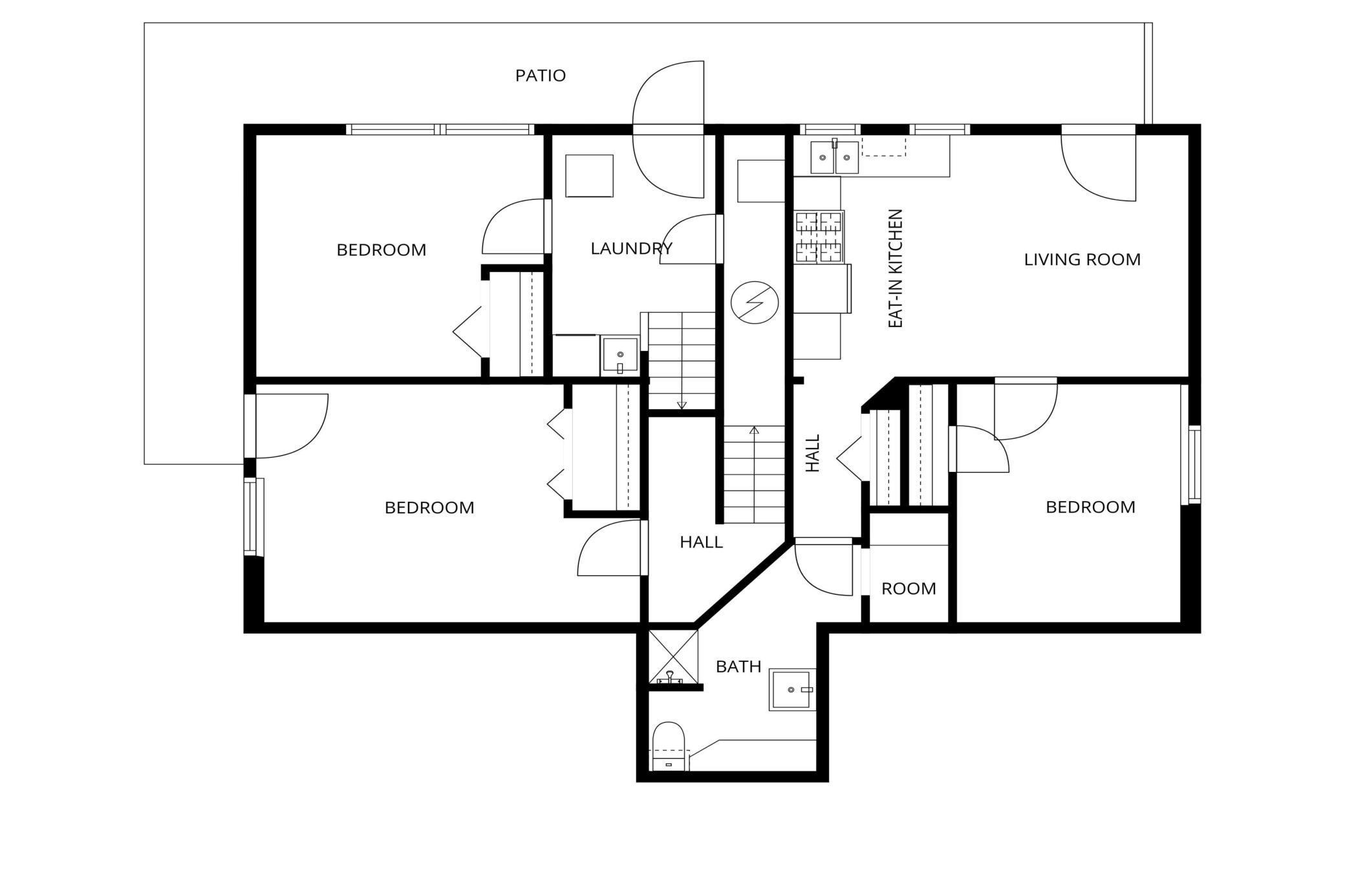
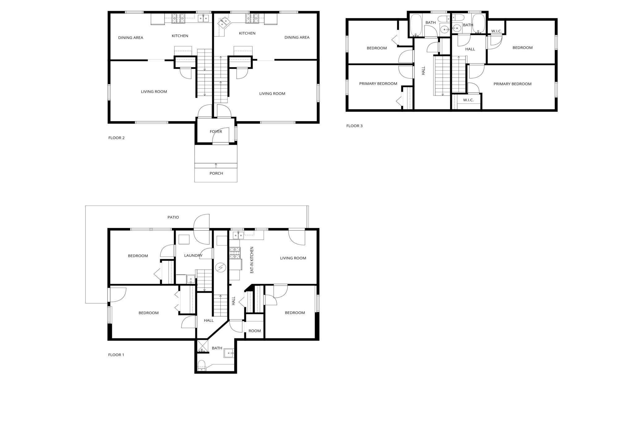
Fantastic Triplex Opportunity in Prime Maple Grove Location! Don't miss this incredible opportunity to own a well-maintained triplex nestled in a desirable Maple Grove neighborhood surrounded by single-family homes. The property features two 3-bedroom, 1-bath units and one 1-bedroom, 1-bath unit. The 1-bedroom unit currently leased on a month-to-month basis, while both 3-bedroom units are vacant and move-in ready-making this a perfect fit for either owner-occupants or investors looking to place their own tenants. Each unit has been recently refreshed, and the property shows beautifully with clean interiors. The building is ready for immediate occupancy Utilities are currently paid by the owner, offering flexibility for future lease structuring. Whether you're seeking strong rental income or a live-in investment in a sought-after location, this triplex offers outstanding potential! is Units 1 and 2 (the 3 bedroom units) are available to see on first showings. The 3rd unit is available for 2nd showings or during inspection periods. Please see supplements for additional income and expense information.

INTERIOR

  • Bedrooms: N/A

  • Fin ft² / Living Area: 2524 ft²

  • Below Ground Living: 812ft²

  • Bathrooms: N/A

  • Above Ground Living: 1712ft²

  • Basement Details: Block, Finished, Full, Walkout,

  • Appliances Included:

EXTERIOR

  • Air Conditioning: N/A

  • Garage Spaces: N/A

  • Construction Materials: N/A

  • Foundation Size: 1000ft²

  • Unit Amenities:

  • Heating System:

    • Hot Water
    • Baseboard

LOT

  • Acres: N/A

  • Lot Size Dim.: 75x185

  • Longitude: 45.0713

  • Latitude: -93.4519

  • Zoning: Residential-Multi-Family

FINANCIAL & TAXES

  • Tax year: 2025

  • Tax annual amount: $6,251

MISCELLANEOUS

  • Fuel System: N/A

  • Sewer System: City Sewer - In Street

  • Water System: City Water - In Street

ADDITIONAL INFORMATION

  • MLS#: NST7819128

  • Listing Brokerage: Edina Realty, Inc. Agency Icon

ID: 4232961
Published: October 22, 2025
Last Update: October 22, 2025
Views: 12