633 COUNTY ROAD B2

633 County Road B2 , Saint Paul (Little Canada), 55117, MN

FEATURES

DETAILS

Experience classic mid-century style in this lakefront home on the south side of Lake Gervais, featuring a gentle slope to the water's edge. The spacious living room offers engineered hardwood floors and large windows that showcase beautiful lake views and natural light. The open layout leads into an updated kitchen with stainless steel appliances, quartz countertops, and a distinctive copper sink. The lower level includes a large open space - ideal for a billiard room or entertaining - with direct walkout access to the lake. Enjoy being just a short walk (less than ¼ mile) to Lake Gervais County Park with its public beach, trails, and playground. Quick access to Hwy 36 makes this a perfect mix of comfort, charm, and convenience.

INTERIOR

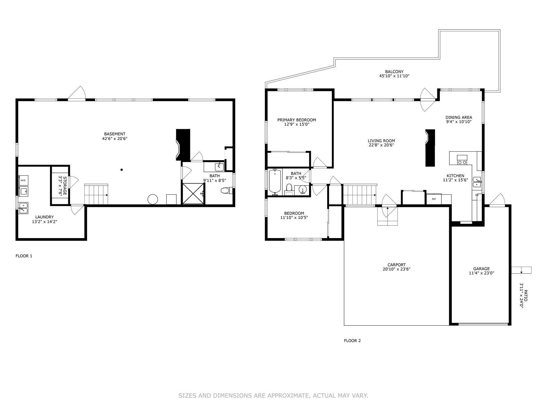
  • Bedrooms: 2

  • Fin ft² / Living Area: 2147 ft²

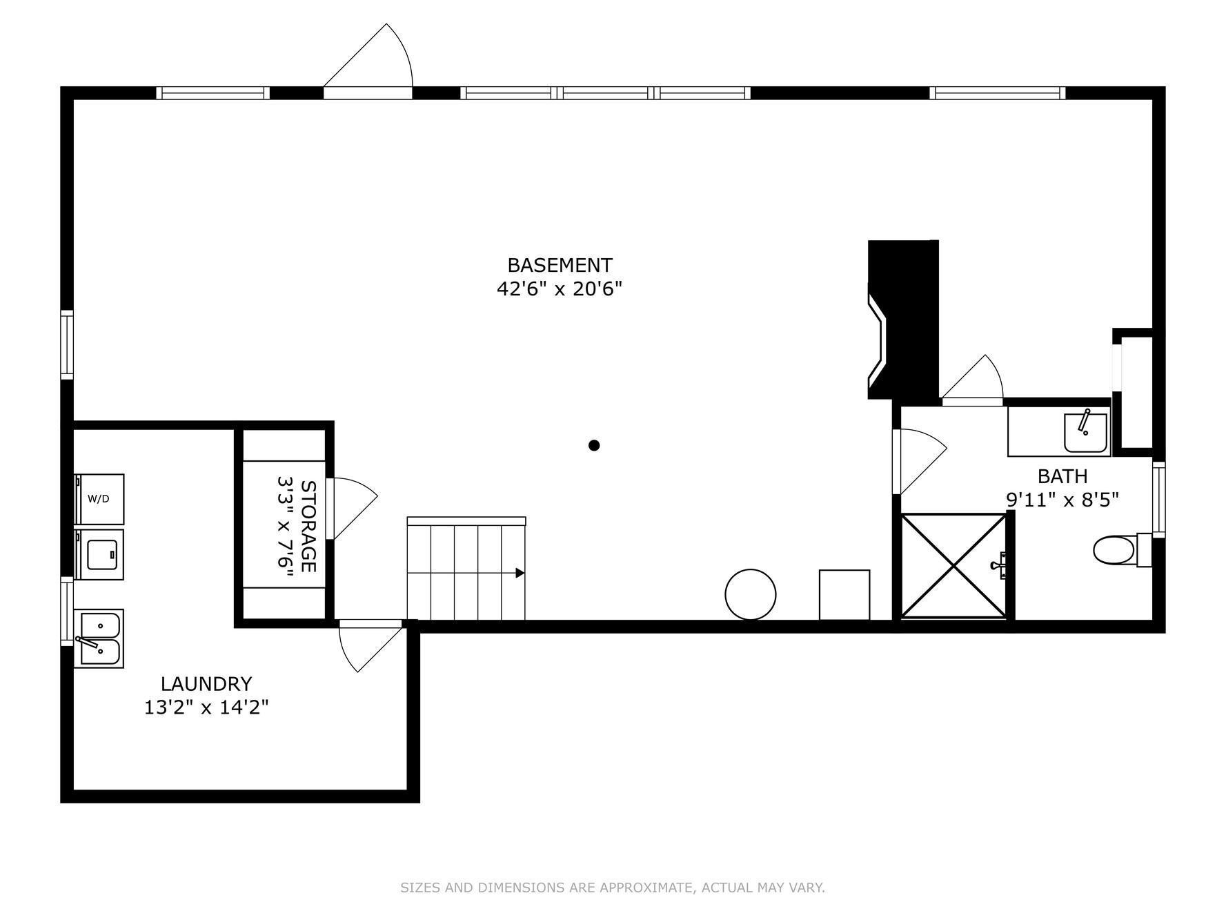
  • Below Ground Living: 959ft²

  • Bathrooms: 2

  • Above Ground Living: 1188ft²

  • Basement Details: Block, Finished, Full, Storage Space, Walkout,

  • Appliances Included:

EXTERIOR

  • Air Conditioning: Central Air

  • Garage Spaces: 1

  • Construction Materials: N/A

  • Foundation Size: 1188ft²

  • Unit Amenities:

    • Kitchen Window
    • Deck
    • Hardwood Floors
    • Dock
    • Washer/Dryer Hookup
    • Main Floor Primary Bedroom
  • Heating System:

    • Forced Air
    • Fireplace(s)

ROOMS

Main Size ft²
Living Room 23x21 529 ft²
Dining Room 11x9 121 ft²
Kitchen 16x11 256 ft²
Bedroom 1 15x13 225 ft²
Bedroom 2 12x11 144 ft²
Lower Size ft²
Office 12x9 144 ft²
Billiard 32x13 1024 ft²

LOT

  • Acres: N/A

  • Lot Size Dim.: 60x167

  • Longitude: 45.0121

  • Latitude: -93.0739

  • Zoning: Residential-Single Family

FINANCIAL & TAXES

  • Tax year: 2025

  • Tax annual amount: $7,514

MISCELLANEOUS

  • Fuel System: N/A

  • Sewer System: City Sewer/Connected

  • Water System: City Water/Connected

ADDITIONAL INFORMATION

  • MLS#: NST7761953

  • Listing Brokerage: Edina Realty, Inc. Agency Icon

ID: 3855118
Published: July 03, 2025
Last Update: July 03, 2025
Views: 27