6216 HANSEN ROAD

6216 Hansen Road, Minneapolis (Edina), 55436, MN

FEATURES

DETAILS

Welcome to this beautifully remodeled walkout rambler in Edina’s sought-after Birchcrest neighborhood. Thoughtfully redesigned with exceptional craftsmanship, this home blends modern elegance with timeless appeal. Inside, you’ll find updated flooring, fresh neutral-toned paint, and designer lighting, creating a warm and inviting ambiance. The kitchen features high-end appliances, custom cabinetry, quartz countertops, and sleek hardware, perfectly suited for both casual and formal dining. The living room boasts a striking quartz-surround fireplace and sliding glass doors that leads to a deck overlooking the spacious backyard. The main level also offers two bedrooms, a full bathroom, and a private owner’s suite with a luxurious 3/4 en-suite bath. The walkout lower level includes a family room, game area, second kitchen, two additional bedrooms, a 3/4 bath, and laundry area, making it ideal for guests or multi-generational living. Situated on a 0.43-acre lot near award-winning schools, shopping, and highways, this home is a must-see!

INTERIOR

  • Bedrooms: 4

  • Fin ft² / Living Area: 2430 ft²

  • Below Ground Living: 1076ft²

  • Bathrooms: 3

  • Above Ground Living: 1354ft²

  • Basement Details: Block, Daylight/Lookout Windows, Finished, Full, Tile Shower, Walkout,

  • Appliances Included:

EXTERIOR

  • Air Conditioning: Central Air

  • Garage Spaces: 2

  • Construction Materials: N/A

  • Foundation Size: 1123ft²

  • Unit Amenities:

    • Kitchen Window
    • Deck
    • Washer/Dryer Hookup
    • Kitchen Center Island
    • Wet Bar
    • Tile Floors
    • Main Floor Primary Bedroom
  • Heating System:

    • Forced Air

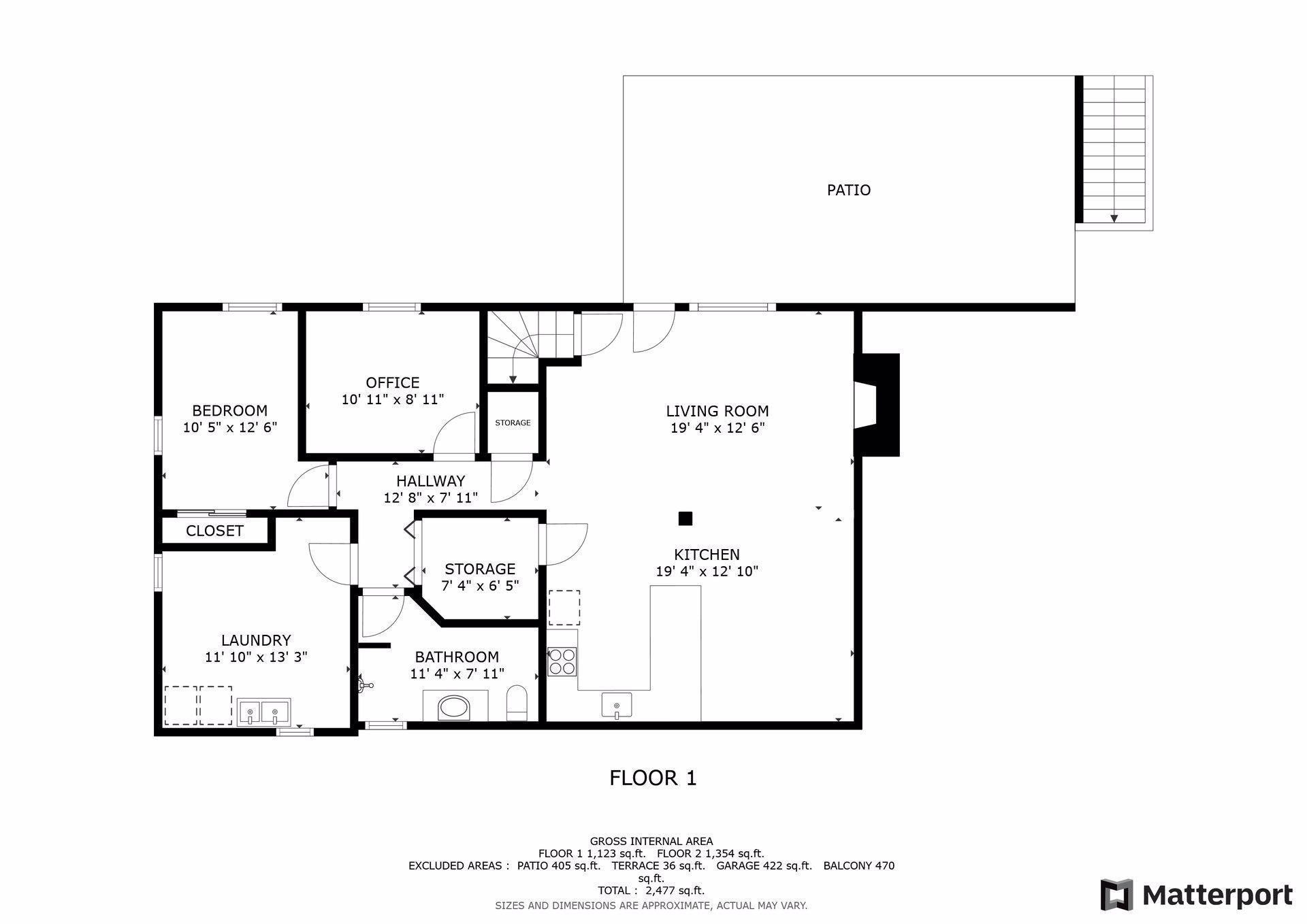
ROOMS

Main Size ft²
Living Room 20x15 400 ft²
Dining Room 16x11 256 ft²
Kitchen 11x14 121 ft²
Bedroom 1 12x12 144 ft²
Bedroom 2 10x12 100 ft²
Bedroom 3 10x14 100 ft²
Lower Size ft²
Bedroom 4 10x12 100 ft²
Living Room 19x12 361 ft²
Kitchen 19x13 361 ft²
Office 11x9 121 ft²
Laundry 12x13 144 ft²

LOT

  • Acres: N/A

  • Lot Size Dim.: 80x239x80x243

  • Longitude: 44.8906

  • Latitude: -93.3614

  • Zoning: Residential-Single Family

FINANCIAL & TAXES

  • Tax year: 2024

  • Tax annual amount: $7,750

MISCELLANEOUS

  • Fuel System: N/A

  • Sewer System: City Sewer/Connected

  • Water System: City Water/Connected

ADDITIONAL INFORMATION

  • MLS#: NST7691725

  • Listing Brokerage: Coldwell Banker Burnet Agency Icon

ID: 3493809
Published: January 31, 2025
Last Update: January 31, 2025
Views: 21