529 WHEELER DRIVE

529 Wheeler Drive, Excelsior, 55331, MN

  • Price: $679,000

  • Status type: For Sale

  • City: Excelsior

  • Neighborhood: N/A

  • Bedrooms: 0

  • Property Size :2330

  • Listing Agent: NST16633,NST84337

DETAILS

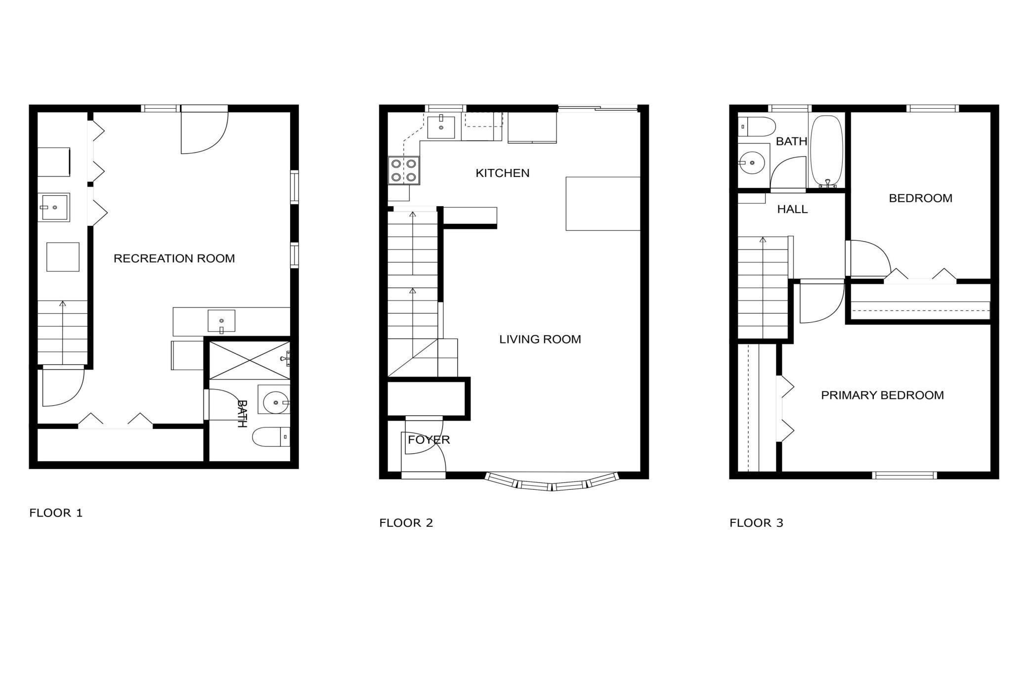
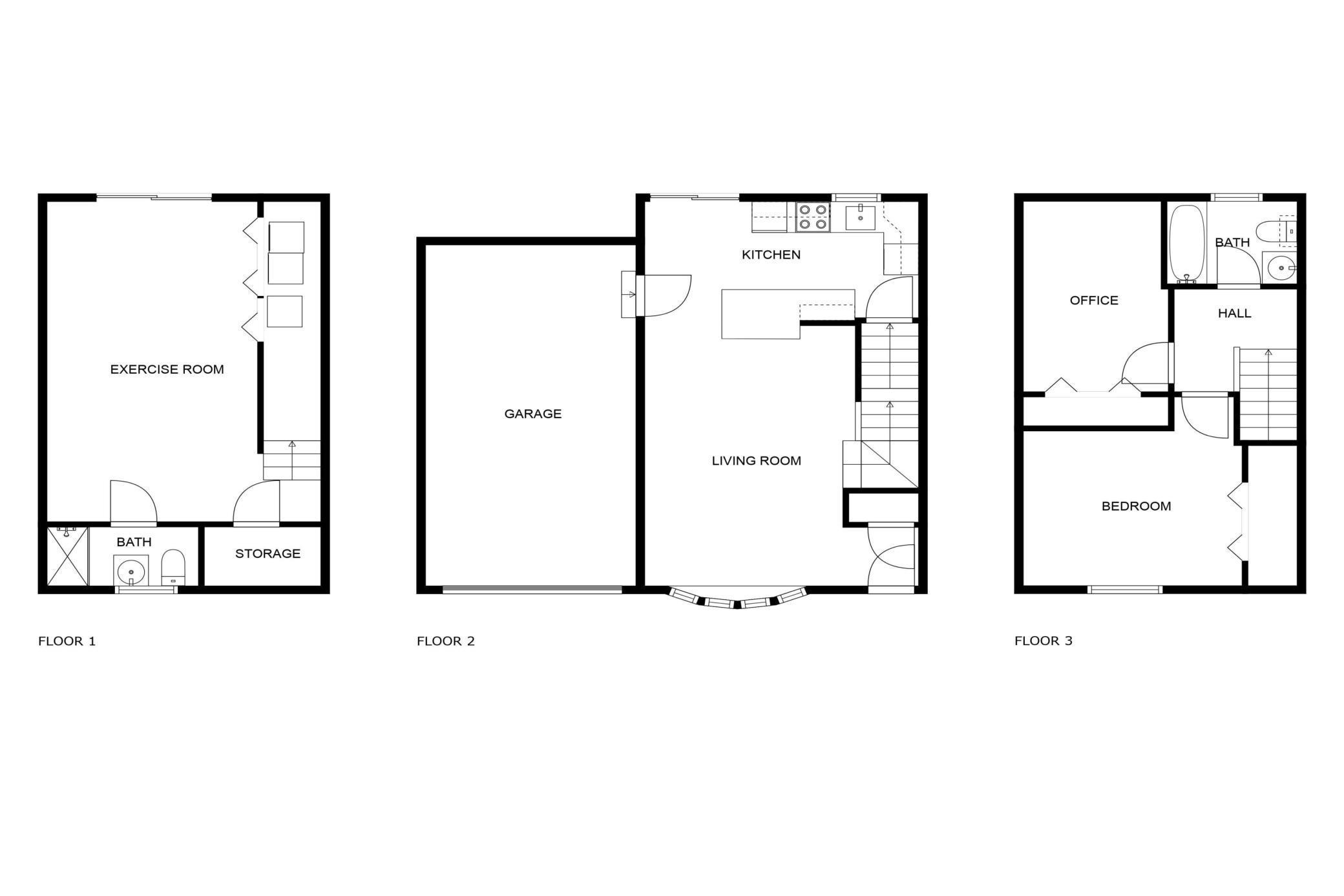
Turnkey side by side duplex, highly desirable neighborhood within 4 blocks of Maynards and downtown Excelsior. Lush level lawn with peaceful wetland views out the back deck or lower patio. Both units feature 2 upper-level bedrooms and full baths. Lower-level walkouts include 3/4 baths. The current owners unit lower level includes a kitchenette with frig and sink. Both sides have maple and bamboo flooring in kitchens and bedrooms, washer/dryer units in each lower level. A separate garage comes with each unit. Sellers have occupied and thoroughly renovated over the past 12 years. Renter turnover has been minimal.

INTERIOR

  • Bedrooms: N/A

  • Fin ft² / Living Area: 2330 ft²

  • Below Ground Living: 666ft²

  • Bathrooms: N/A

  • Above Ground Living: 1664ft²

  • Basement Details: Block, Finished, Owner Access, Partially Finished, Single Tenant Access, Walkout,

  • Appliances Included:

EXTERIOR

  • Air Conditioning: N/A

  • Garage Spaces: 2

  • Construction Materials: N/A

  • Foundation Size: 860ft²

  • Unit Amenities:

  • Heating System:

    • Forced Air

LOT

  • Acres: N/A

  • Lot Size Dim.: 70 x 152

  • Longitude: 44.899

  • Latitude: -93.5587

  • Zoning: N/A

FINANCIAL & TAXES

  • Tax year: 2025

  • Tax annual amount: $5,867

MISCELLANEOUS

  • Fuel System: N/A

  • Sewer System: City Sewer/Connected,City Sewer - In Street

  • Water System: City Water/Connected,City Water - In Street

ADDITIONAL INFORMATION

  • MLS#: NST7761563

  • Listing Brokerage: Coldwell Banker Burnet Agency Icon

ID: 3833987
Published: June 27, 2025
Last Update: June 27, 2025
Views: 602