2591 Carver Avenue, Saint Paul (Maplewood), 55119, MN
Price: $1,499,000
Status type: For Sale
City: Saint Paul (Maplewood)
Neighborhood: Section 24 Town 28 Range 22
Bedrooms: 3
Property Size :3115
Listing Agent: NST26146,NST75986
Property type : Single Family Residence
Zip code: 55119
Street: 2591 Carver Avenue
Street: 2591 Carver Avenue
Bathrooms: 3
Year: 1967
Listing Brokerage: Exp Realty, LLC.
Don’t miss this rare opportunity to own your own private retreat, set on 9.2 scenic acres with a pond and a creek. This peaceful property offers the perfect blend of nature, space, and functionality. The property is adjacent to Fish Creek Natural Area/Open Space. Three large outbuildings with concrete floors provide endless possibilities for storage, hobbies, or workspace. The 3-bedroom, 3-bath home features a bright and inviting sunroom, ideal for enjoying the surrounding views year-round. Whether you're looking for space to roam, garden, or simply unwind in a serene setting, this property offers it all—a true hidden gem just minutes from city conveniences! See 2511 Carver listing MLS #6724602 Possibility to replicate that 48 x 88 building at this property. Precedence has been set with the larger pole building. Buyer to verify with the City of Maplewood
Bedrooms: 3
Fin ft² / Living Area: 3115 ft²
Below Ground Living: 1200ft²
Bathrooms: 3
Above Ground Living: 1915ft²
Basement Details: Finished, Full,
Appliances Included:
Air Conditioning: Central Air
Garage Spaces: 2
Construction Materials: N/A
Foundation Size: 1115ft²
Unit Amenities:
Heating System:
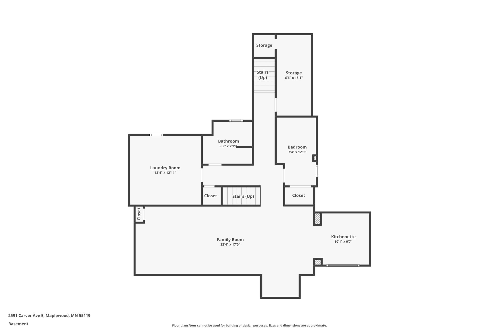
| Main | Size | ft² |
|---|---|---|
| Dining Room | 13x9 | 169 ft² |
| Living Room | 25x13 | 625 ft² |
| Sun Room | 10x11 | 100 ft² |
| Kitchen | 17x12 | 289 ft² |
| Mud Room | 8x16 | 64 ft² |
| Bedroom 1 | 13x14 | 169 ft² |
| Upper | Size | ft² |
|---|---|---|
| Bedroom 2 | 13x18 | 169 ft² |
| Bedroom 3 | 14x18 | 196 ft² |
| Lower | Size | ft² |
|---|---|---|
| Family Room | 13x33 | 169 ft² |
| Bedroom 4 | 7x13 | 49 ft² |
| Laundry | 13x13 | 169 ft² |
| Storage | 15x7 | 225 ft² |
Acres: N/A
Lot Size Dim.: irregular
Longitude: 44.9031
Latitude: -92.991
Zoning: Residential-Single Family
Tax year: 2024
Tax annual amount: $6,704
Fuel System: N/A
Sewer System: City Sewer/Connected
Water System: Well
MLS#: NST7727755
Listing Brokerage: Exp Realty, LLC. ![]()