2316 24th Avenue, Minneapolis, 55411, MN
Price: $235,000
Status type: For Sale
City: Minneapolis
Neighborhood: Willard - Hay
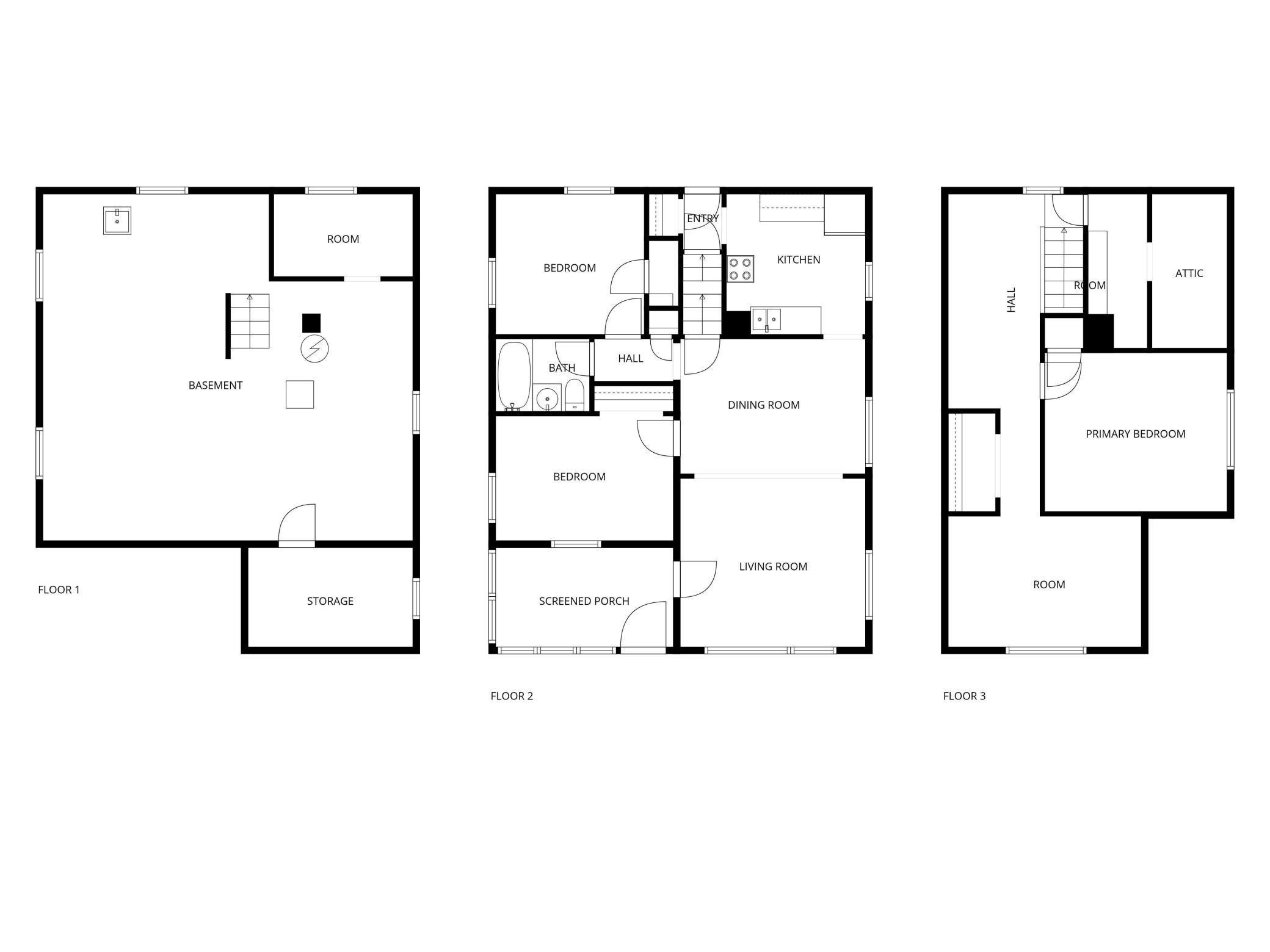
Bedrooms: 3
Property Size :1528
Listing Agent: NST1001854,NST276672
Property type : Single Family Residence
Zip code: 55411
Street: 2316 24th Avenue
Street: 2316 24th Avenue
Bathrooms: 1
Year: 1924
Listing Brokerage: Century 21 Atwood
Welcome to 2316 24th Ave N in Minneapolis – a stunningly refreshed home that perfectly blends modern updates with timeless charm! Surrounded by mature trees, this home features newer siding, a newer roof, and updated mechanicals, giving you both style and peace of mind. Enjoy relaxing mornings or evening breezes on the inviting covered porch, the perfect spot to unwind and take in the neighborhood. Step inside to discover bright, sun-filled living spaces with new LVP flooring and fresh designer paint throughout. The main level offers a spacious living room flooded with natural light, a dedicated dining area, two comfortable bedrooms, and a beautifully updated full bath. Upstairs, the expansive loft area provides endless possibilities—use it as a cozy retreat, creative space, or easily convert it into a fourth bedroom for added value at a low cost! This move-in-ready gem is bursting with character and potential. Don’t miss your chance to call this light-filled, vibrant home yours!
Bedrooms: 3
Fin ft² / Living Area: 1528 ft²
Below Ground Living: N/A
Bathrooms: 1
Above Ground Living: 1528ft²
Basement Details: Block, Unfinished,
Appliances Included:
Air Conditioning: Window Unit(s)
Garage Spaces: N/A
Construction Materials: N/A
Foundation Size: 952ft²
Unit Amenities:
Heating System:
| Main | Size | ft² | 
|---|---|---|
| Living Room | 23x14 | 529 ft² | 
| Bedroom 1 | 13x9 | 169 ft² | 
| Bedroom 2 | 11x10 | 121 ft² | 
| Kitchen | 10x10 | 100 ft² | 
| Porch | 13x8 | 169 ft² | 
| Dining Room | 14x13 | 196 ft² | 
| Upper | Size | ft² | 
|---|---|---|
| Bedroom 3 | 13x11 | 169 ft² | 
| Loft | 14x10 | 196 ft² | 
Acres: N/A
Lot Size Dim.: 102x85x95x27
Longitude: 45.0044
Latitude: -93.3102
Zoning: Residential-Single Family
Tax year: 2025
Tax annual amount: $1,998
Fuel System: N/A
Sewer System: City Sewer/Connected
Water System: City Water/Connected
MLS#: NST7819081
Listing Brokerage: Century 21 Atwood                            