228 12TH AVENUE

228 12th Avenue, Hopkins, 55343, MN

FEATURES

DETAILS

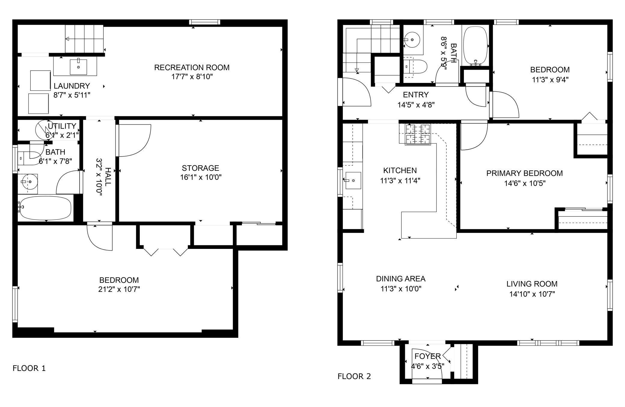
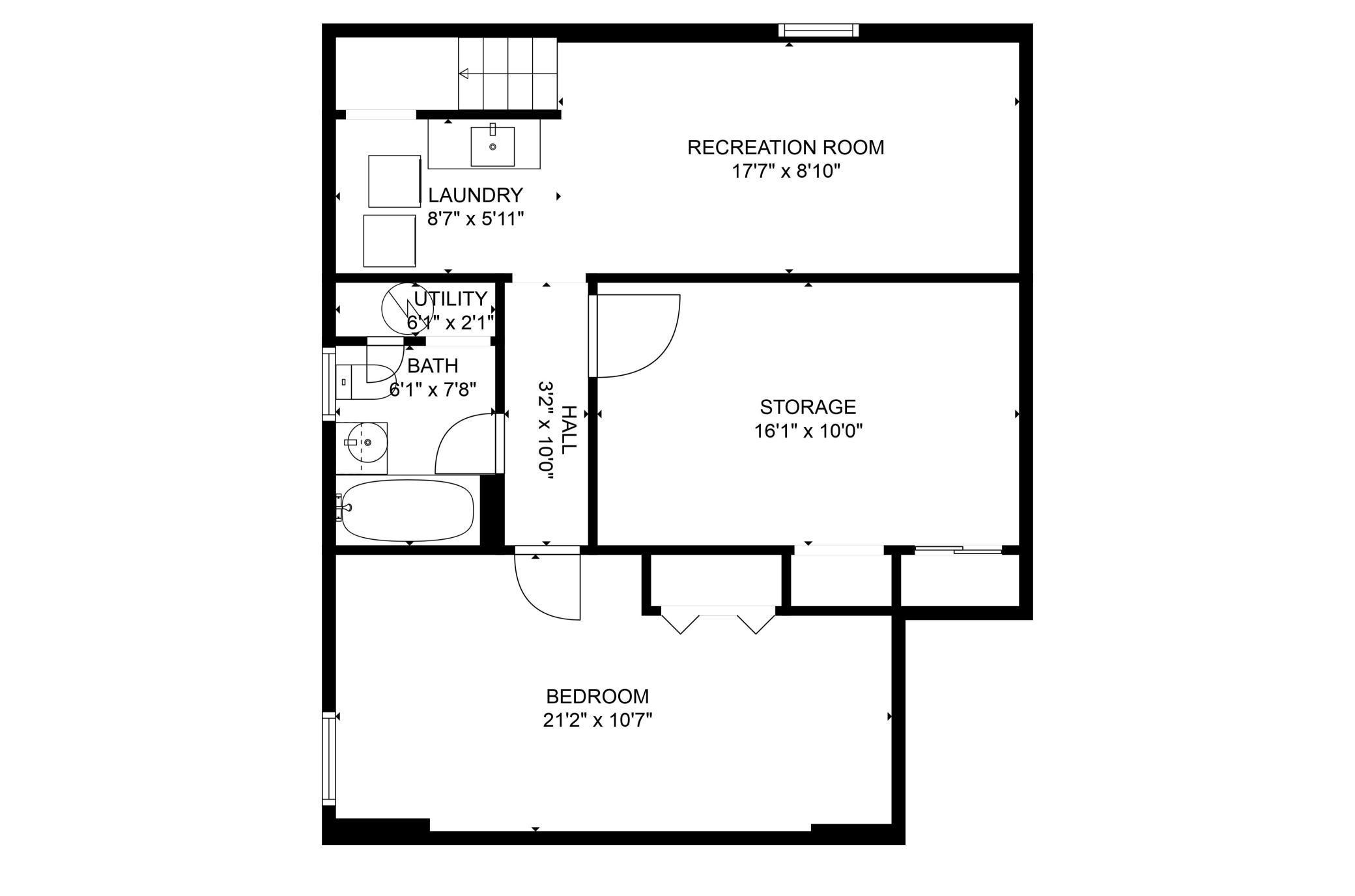
Welcome to this charming and bright home, thoughtfully updated to combine comfort and style! The spacious kitchen is a chef’s dream, featuring brand-new quartz countertops (2025), a deep stainless steel sink (2025), beautiful maple cabinets, sleek stainless steel appliances, and ample counter space for meal prep. The open main floor layout creates a warm and inviting atmosphere, perfect for hosting gatherings or enjoying everyday life. Two generously sized upstairs bedrooms with carpeting provide cozy retreats, complemented by a full, tastefully updated bathroom. The lower level expands your living options with a family room ideal for movie nights or play area, an additional bedroom, a versatile exercise or storage room, and a second full bathroom for convenience. Step outside to a thoughtfully landscaped yard offering privacy and tranquility, complete with a charming patio and fire pit—perfect for summer evenings and entertaining guests. And for peace of mind, enjoy the brand-new roof (2024) and siding (2024) that add curb appeal and long-lasting value. Its location could not be better: walking distance from quaint downtown Hopkins, a short drive from downtown Minneapolis, and centrally located between highways 494 and 169. This home has easy access to schools, shopping, and parks, including Maetzold Field next door. This spectacular property offers the perfect blend of comfort, functionality, and lifestyle.

INTERIOR

  • Bedrooms: 3

  • Fin ft² / Living Area: 1717 ft²

  • Below Ground Living: 730ft²

  • Bathrooms: 2

  • Above Ground Living: 987ft²

  • Basement Details: Daylight/Lookout Windows, Egress Window(s), Finished, Full,

  • Appliances Included:

EXTERIOR

  • Air Conditioning: Central Air

  • Garage Spaces: 2

  • Construction Materials: N/A

  • Foundation Size: 730ft²

  • Unit Amenities:

    • Patio
    • Kitchen Window
    • Ceiling Fan(s)
    • Washer/Dryer Hookup
  • Heating System:

    • Forced Air

ROOMS

Main Size ft²
Living Room 16 x 10 256 ft²
Dining Room 11 x 10 121 ft²
Kitchen 11 x 11 121 ft²
Bedroom 1 13 x 9 169 ft²
Bedroom 2 11 x 16 121 ft²
Lower Size ft²
Family Room 17 x 9 289 ft²
Bedroom 3 20 x 9 400 ft²
Storage 9 x 9 81 ft²

LOT

  • Acres: N/A

  • Lot Size Dim.: 50x123

  • Longitude: 44.929

  • Latitude: -93.4153

  • Zoning: Residential-Single Family

FINANCIAL & TAXES

  • Tax year: 2025

  • Tax annual amount: $5,527

MISCELLANEOUS

  • Fuel System: N/A

  • Sewer System: City Sewer/Connected

  • Water System: City Water/Connected

ADDITIONAL INFORMATION

  • MLS#: NST7805974

  • Listing Brokerage: Keller Williams Premier Realty Lake Minnetonka Agency Icon

ID: 4172474
Published: October 02, 2025
Last Update: October 02, 2025
Views: 3