2123 SHERIDAN AVENUE

2123 Sheridan Avenue, Minneapolis, 55411, MN

FEATURES

DETAILS

Welcome home to this recently renovated 4 bedroom home on a hill in the lovely Willard-Hay neighborhood. This spacious home features original hardwood floors, ceiling fans, stone countertops in the kitchen and a formal dining room! The inviting front porch is spacious to hold a table and chairs for you to sit on and enjoy a slow morning cup of coffee or a nightcap after work. The three bedrooms on the upper level also has space for an office, walk-in closet or even a play room for your littles to store all their toys. With great views of downtown Minneapolis, blocks from Theo Wirth Parkway and excellent walkability to shops and restaurants, the location can't be beat. So much character in this early 20th century home, it will be tough to compare with the rest of the homes on the market!

INTERIOR

  • Bedrooms: 4

  • Fin ft² / Living Area: 1776 ft²

  • Below Ground Living: N/A

  • Bathrooms: 2

  • Above Ground Living: 1776ft²

  • Basement Details: Block, Unfinished,

  • Appliances Included:

EXTERIOR

  • Air Conditioning: Central Air

  • Garage Spaces: N/A

  • Construction Materials: N/A

  • Foundation Size: 966ft²

  • Unit Amenities:

    • Kitchen Window
    • Porch
    • Natural Woodwork
    • Hardwood Floors
    • Ceiling Fan(s)
    • Main Floor Primary Bedroom
  • Heating System:

    • Forced Air

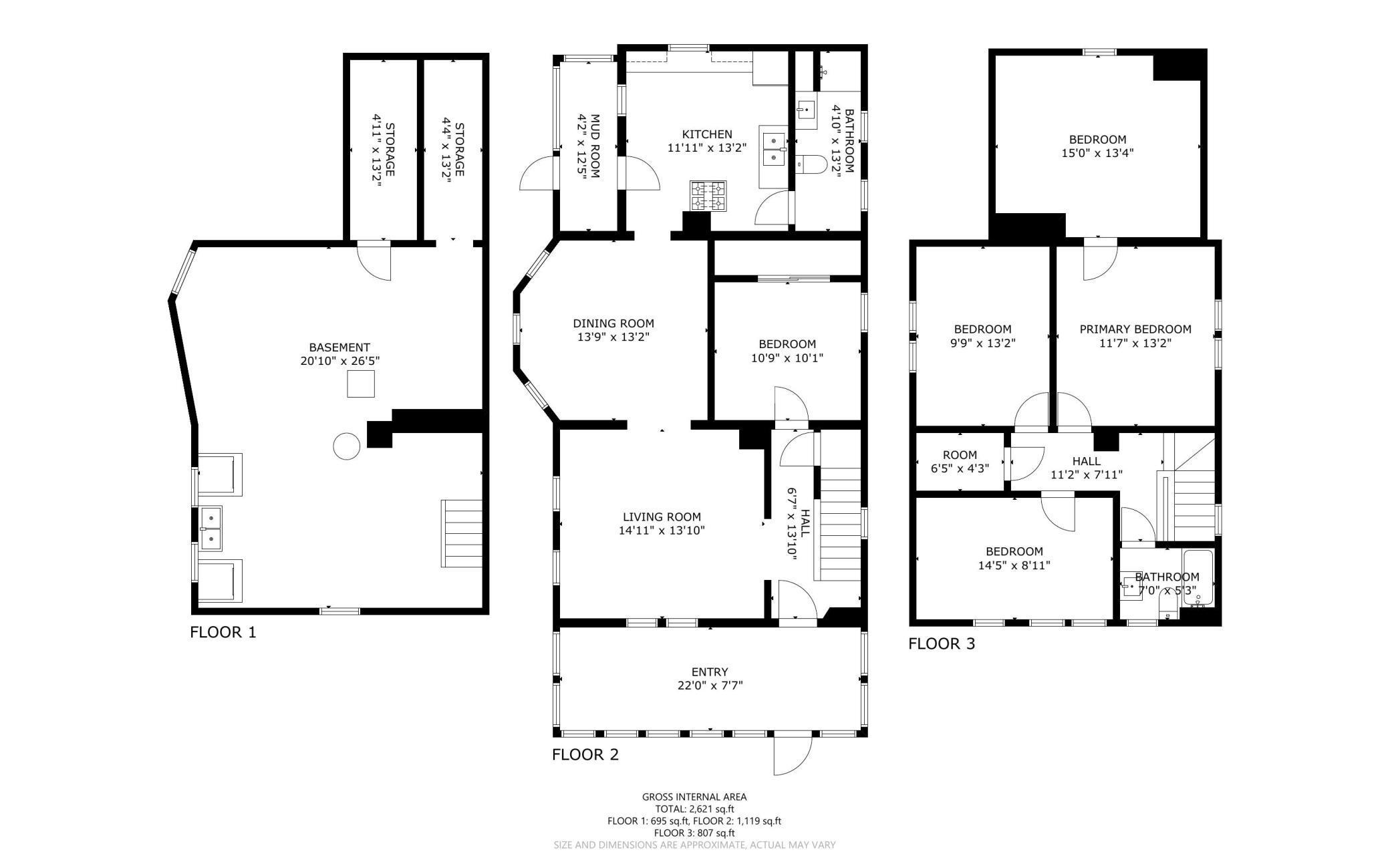
ROOMS

Main Size ft²
Living Room 14 x 15 196 ft²
Dining Room 13 x 14 169 ft²
Kitchen 12 x 13 144 ft²
Porch 7 x 22 49 ft²
Upper Size ft²
Bedroom 1 11 x 13 121 ft²
Bedroom 3 9 x 14 81 ft²
Bedroom 4 10 x 13 100 ft²
Office 13 x 15 169 ft²
Lower Size ft²
Bedroom 2 10 x 11 100 ft²

LOT

  • Acres: N/A

  • Lot Size Dim.: 43 x 129

  • Longitude: 45.0013

  • Latitude: -93.3124

  • Zoning: Residential-Single Family

FINANCIAL & TAXES

  • Tax year: 2025

  • Tax annual amount: $2,694

MISCELLANEOUS

  • Fuel System: N/A

  • Sewer System: City Sewer/Connected

  • Water System: City Water/Connected

ADDITIONAL INFORMATION

  • MLS#: NST7808350

  • Listing Brokerage: VIBE Realty Agency Icon

ID: 4165903
Published: October 01, 2025
Last Update: October 01, 2025
Views: 5