1836 DAKOTA AVENUE

1836 Dakota Avenue, Minneapolis (Saint Louis Park), 55416, MN

FEATURES

DETAILS

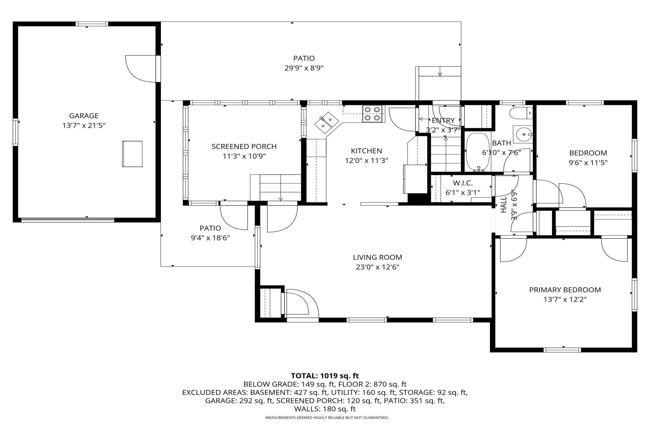
Welcome to this beautiful 3-bedroom rambler in a highly desirable St. Louis Park neighborhood. New siding, windows, doors and a newer roof. Freshly painted interior, with restored original hardwood floors, new carpet. A screened in porch perfect for most seasons. Remodeled but still keeping some of that mid-century charm. With two bedrooms and a full bath on the main level,one bedroom on the lower level. Lower level is clean and ready for your finishing touch's. With room to add family space and another bath. Oversize one car garage. The spacious fenced-in backyard will be great for entertaining. Located near the West End, Costco, Parks and Schools. Walking and biking paths nearby. Just 5 minutes to downtown Mpls.

INTERIOR

  • Bedrooms: 3

  • Fin ft² / Living Area: 2910 ft²

  • Below Ground Living: 970ft²

  • Bathrooms: 1

  • Above Ground Living: 1940ft²

  • Basement Details: Egress Window(s), Full, Partially Finished,

  • Appliances Included:

EXTERIOR

  • Air Conditioning: Central Air

  • Garage Spaces: 1

  • Construction Materials: N/A

  • Foundation Size: 970ft²

  • Unit Amenities:

    • Kitchen Window
    • Porch
    • Hardwood Floors
    • Washer/Dryer Hookup
    • Main Floor Primary Bedroom
  • Heating System:

    • Forced Air

ROOMS

Main Size ft²
Kitchen 12 x 11.3 135 ft²
Living Room 23 x 12.6 287.5 ft²
Informal Dining Room n/a 0 ft²
Bathroom 6.10 x 7.6 51.25 ft²
Bedroom 1 13.7 x 12.2 165.26 ft²
Bedroom 2 9.6 x 11.5 108.46 ft²
Porch 11.3 x 10.9 120.94 ft²
Patio 9.4 x 12.6 116.67 ft²
Patio 29.9 x 8.9 260.31 ft²
Lower Size ft²
Bedroom 3 11.6 x 12.9 146.63 ft²
Utility Room 12 x 13.2 158 ft²
Family Room 36.1 x 13.2 475.1 ft²

LOT

  • Acres: N/A

  • Lot Size Dim.: 75 x 135

  • Longitude: 44.9646

  • Latitude: -93.3612

  • Zoning: Residential-Single Family

FINANCIAL & TAXES

  • Tax year: 2025

  • Tax annual amount: $4,614

MISCELLANEOUS

  • Fuel System: N/A

  • Sewer System: City Sewer/Connected

  • Water System: City Water/Connected

ADDITIONAL INFORMATION

  • MLS#: NST7814578

  • Listing Brokerage: Ferrell Real Estate Group Inc Agency Icon

ID: 4212801
Published: October 15, 2025
Last Update: October 15, 2025
Views: 3