1765 GARLAND LANE

1765 Garland Lane, Plymouth, 55447, MN

FEATURES

DETAILS

Come take a look at this well-kept 3-bedroom, 2-bath rambler offering comfort, convenience, and potential! Freshly painted throughout with hardwood floors, this home features a cozy gas-burning fireplace in the main-level living room and a wood-burning fireplace in the partially finished basement—ready for your finishing touches. Enjoy a newly sealed driveway, a spacious backyard, and a layout perfect for everyday living or entertaining. Located just minutes from shopping, restaurants, churches, and more—with quick and easy access to Hwy 494—this home offers peaceful suburban living with city amenities close by. Don't miss your chance to make this charming Plymouth property your own!

INTERIOR

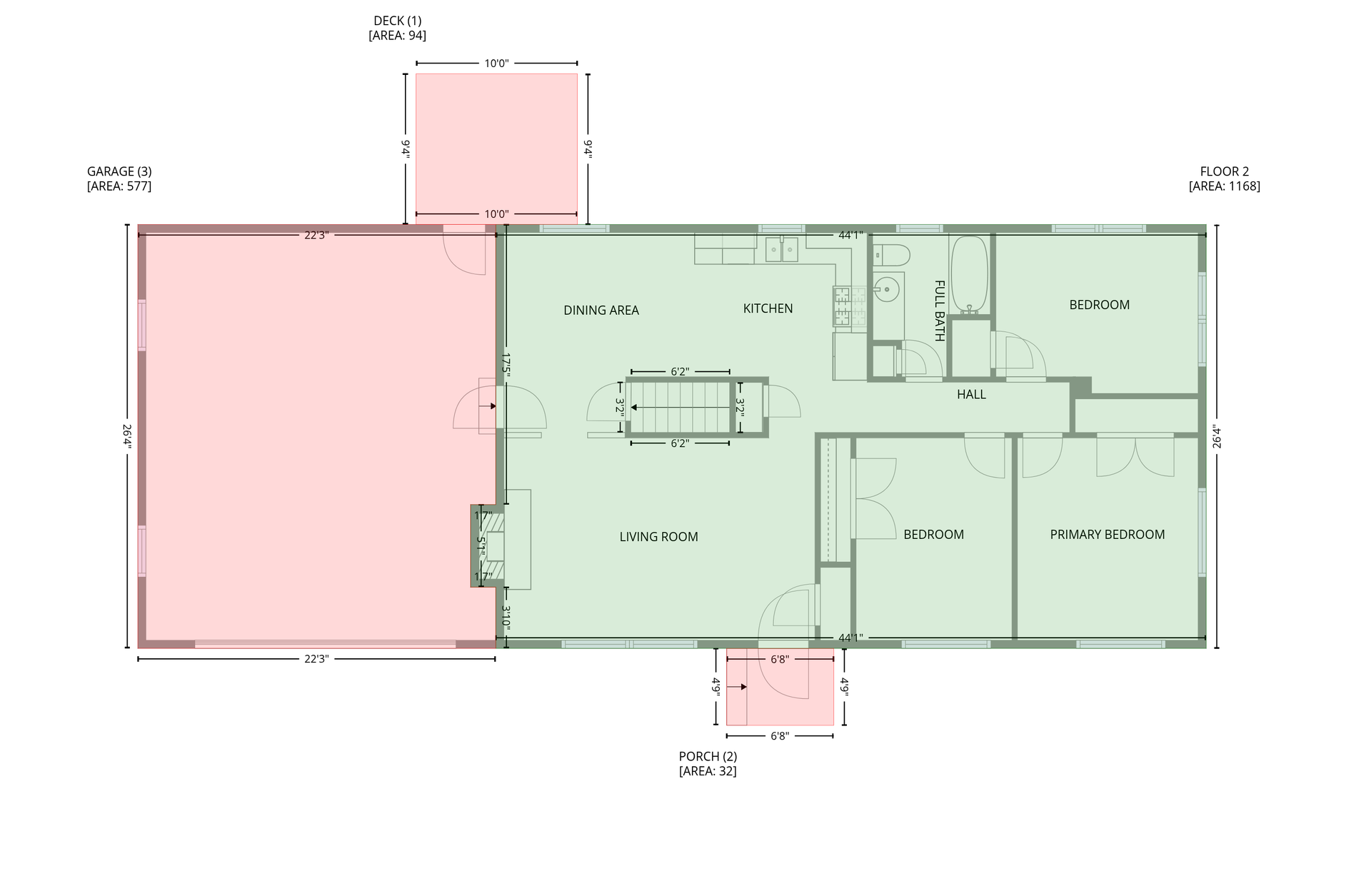
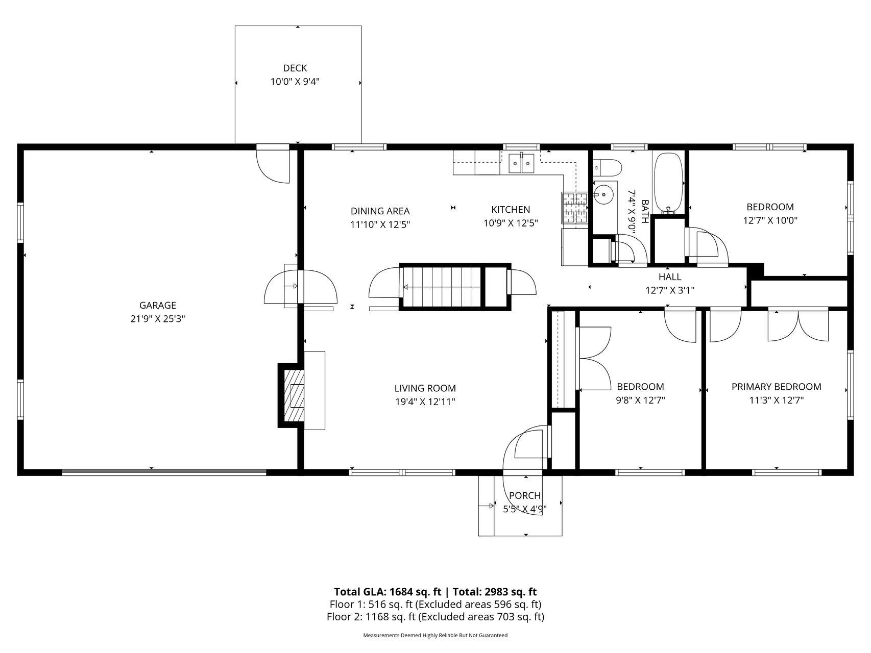
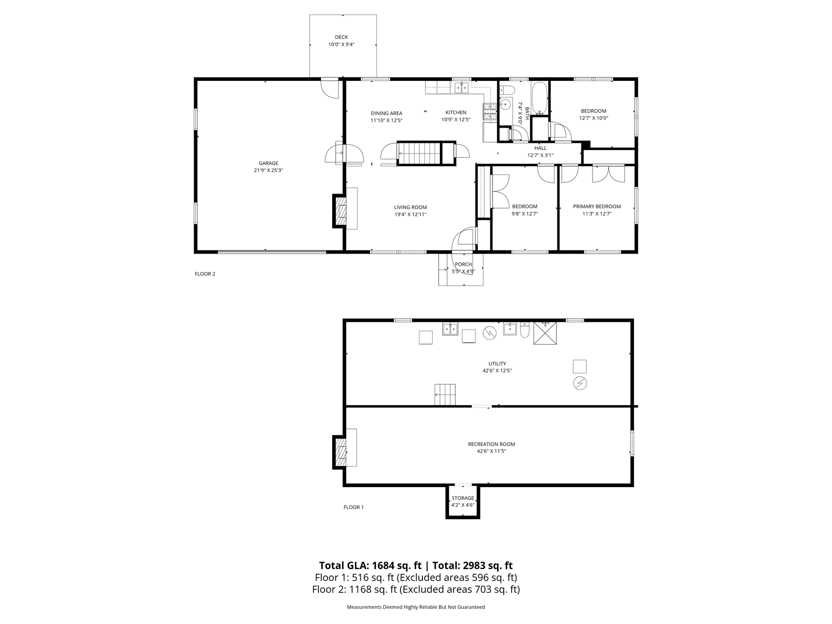
  • Bedrooms: 3

  • Fin ft² / Living Area: 1600 ft²

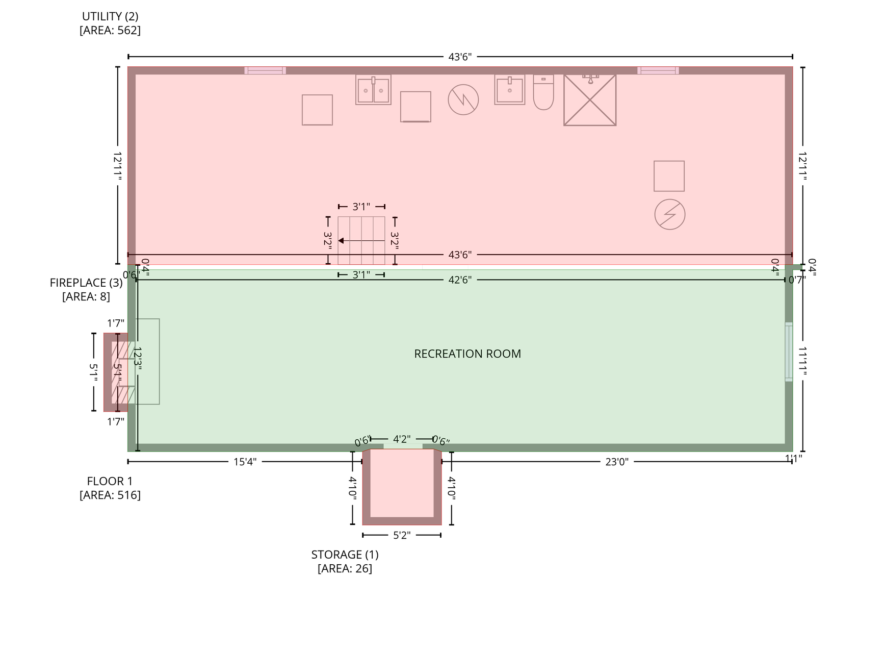
  • Below Ground Living: 456ft²

  • Bathrooms: 2

  • Above Ground Living: 1144ft²

  • Basement Details: Block, Full, Partially Finished,

  • Appliances Included:

EXTERIOR

  • Air Conditioning: Central Air

  • Garage Spaces: 2

  • Construction Materials: N/A

  • Foundation Size: 1144ft²

  • Unit Amenities:

    • Patio
    • Kitchen Window
    • Hardwood Floors
    • Washer/Dryer Hookup
  • Heating System:

    • Forced Air

ROOMS

Main Size ft²
Living Room 13x20 169 ft²
Dining Room 8x9 64 ft²
Kitchen 9x13 81 ft²
Bedroom 1 11x13 121 ft²
Bedroom 2 10x12 100 ft²
Bedroom 3 10x13 100 ft²
Lower Size ft²
Family Room 19x22 361 ft²
Amusement Room 12x19 144 ft²

LOT

  • Acres: N/A

  • Lot Size Dim.: 102x184

  • Longitude: 44.9985

  • Latitude: -93.4945

  • Zoning: Residential-Single Family

FINANCIAL & TAXES

  • Tax year: 2025

  • Tax annual amount: $5,095

MISCELLANEOUS

  • Fuel System: N/A

  • Sewer System: City Sewer/Connected

  • Water System: City Water/Connected

ADDITIONAL INFORMATION

  • MLS#: NST7810274

  • Listing Brokerage: Exp Realty, LLC. Agency Icon

ID: 4200618
Published: October 10, 2025
Last Update: October 10, 2025
Views: 3