14916 OVERLOOK DRIVE

14916 Overlook Drive, Savage, 55378, MN

FEATURES

DETAILS

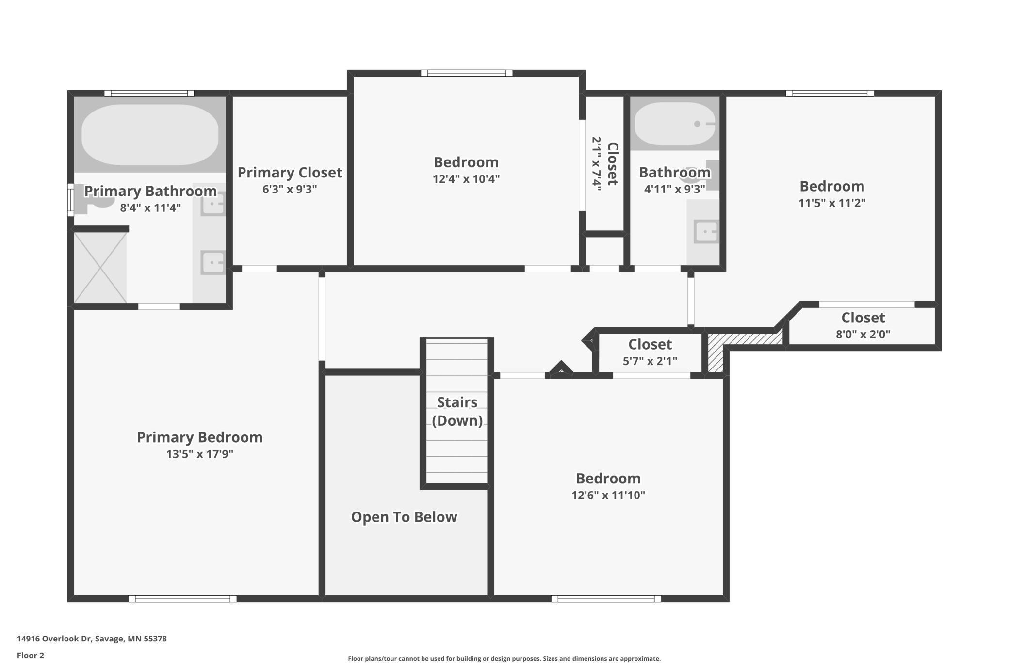
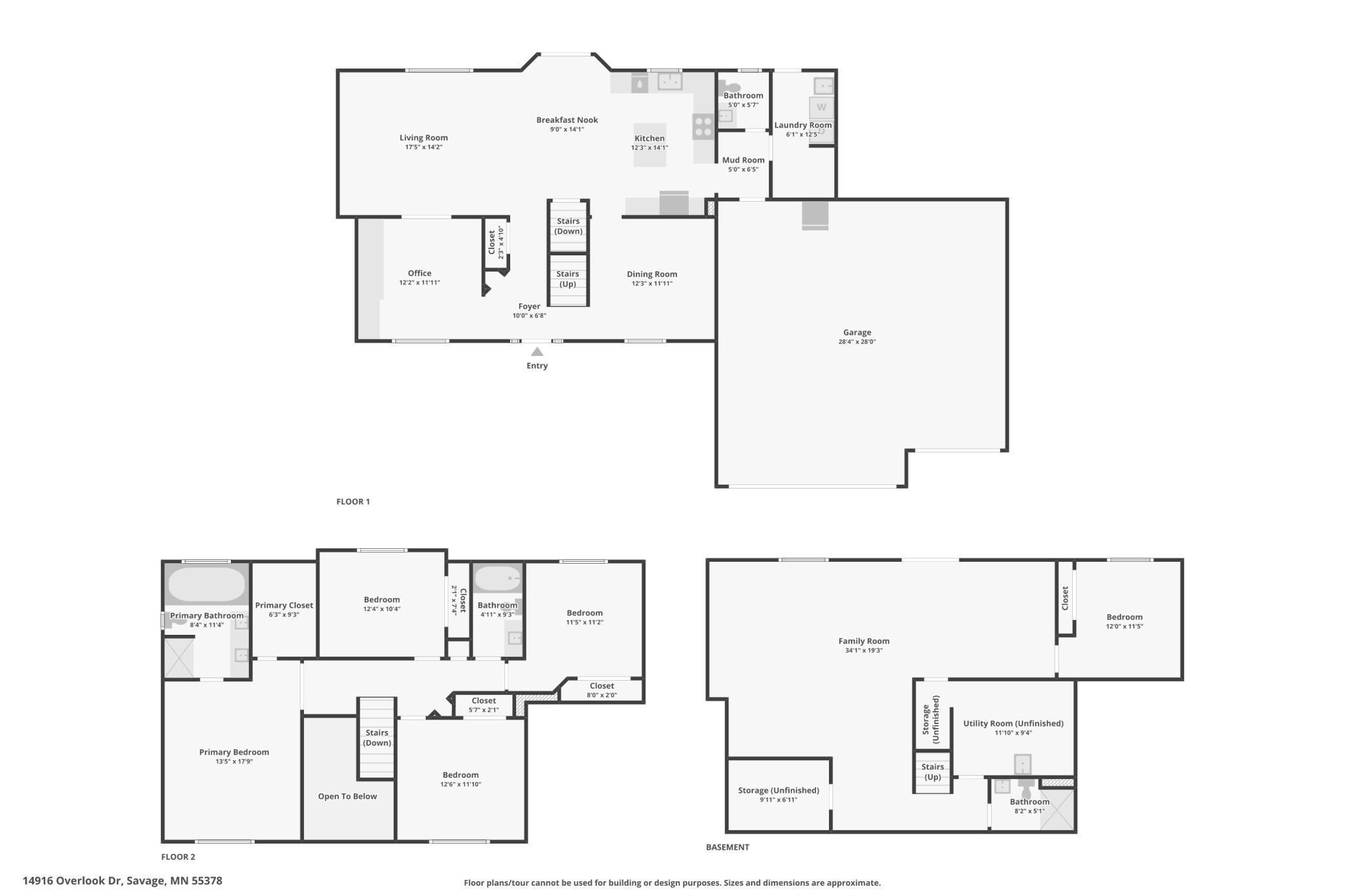
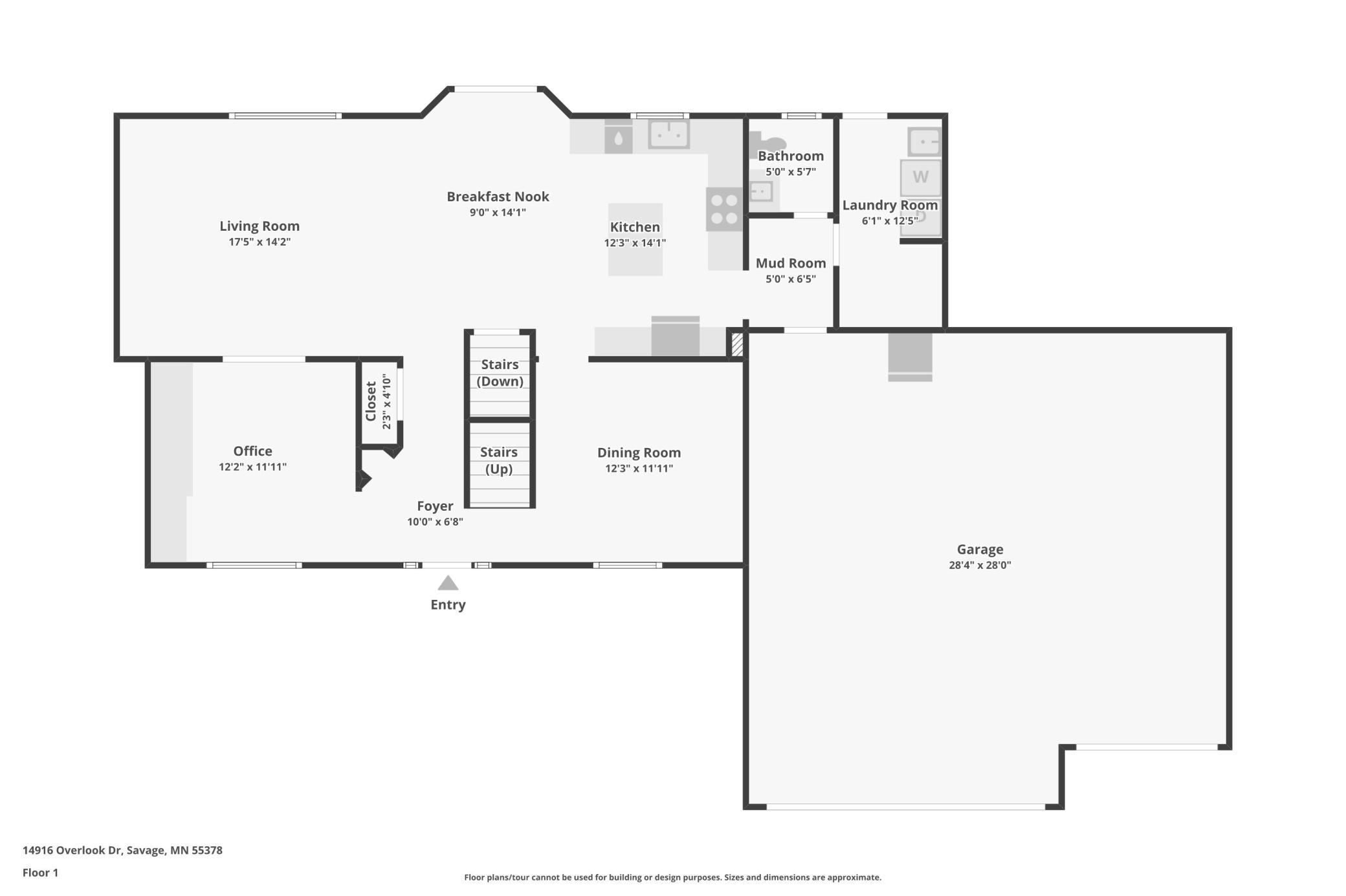
Welcome to 14916 Overlook Drive, a spacious and beautifully maintained colonial-style two-story home nestled on a tree-filled lot and backyard, in the desirable Prior Lake/Savage ISD 719 School District. This 5-bedroom, 4-bathroom home offers a thoughtfully designed living space, including a walkout lower level and a large 3-car garage(740 sq. ft). The front foyer is flooded with natural light from the oversized windows. To the left of the foyer is a dedicated office/den that features double-glass doors and a built-in desk/bookcase. To the right a formal dining room awaits you that can also be used as an additional flex space. The heart of the home lies in the open-concept living room, kitchen, and informal dining area. The kitchen boasts stainless steel appliances(brand new refrigerator and stove 2025), a center island, ample cabinetry, and direct access to the backyard deck via a sliding glass door. Just beyond the kitchen, you'll find a well-designed mudroom leading to the 3-car garage, along with a convenient laundry room and a main-level 1/2 bathroom. Upstairs, retreat to the spacious primary suite through French doors. The ensuite features dual sinks, a jetted tub, a separate walk-in shower, and a large walk-in closet. Three additional bedrooms and a full bathroom complete the upper level, offering plenty of space for family or guests. The fully finished walkout basement includes a large family room, a fifth bedroom, a 3/4 bathroom. Step outside from the lower level to the patio and enjoy the serene backyard with mature trees and a composite storage shed that stays with the home. Enjoy peaceful surroundings, mature landscaping, and the convenience of a prime Savage location close to schools, parks, shopping, and major commuting routes.

INTERIOR

  • Bedrooms: 5

  • Fin ft² / Living Area: 3487 ft²

  • Below Ground Living: 1075ft²

  • Bathrooms: 4

  • Above Ground Living: 2412ft²

  • Basement Details: Daylight/Lookout Windows, Drain Tiled, Finished, Full, Storage Space, Sump Pump, Walkout,

  • Appliances Included:

EXTERIOR

  • Air Conditioning: Central Air,Heat Pump

  • Garage Spaces: 3

  • Construction Materials: N/A

  • Foundation Size: 1194ft²

  • Unit Amenities:

    • Patio
    • Kitchen Window
    • Deck
    • Natural Woodwork
    • Hardwood Floors
    • Ceiling Fan(s)
    • Walk-In Closet
    • Vaulted Ceiling(s)
    • Washer/Dryer Hookup
    • In-Ground Sprinkler
    • Kitchen Center Island
    • French Doors
    • Tile Floors
    • Primary Bedroom Walk-In Closet
  • Heating System:

    • Forced Air

ROOMS

Main Size ft²
Foyer 10'X7' 100 ft²
Office 12'X12' 144 ft²
Dining Room 12'X12' 144 ft²
Living Room 17'X14' 289 ft²
Informal Dining Room 9'X14' 81 ft²
Kitchen 12'X14' 144 ft²
Mud Room 5'X6' 25 ft²
Laundry 6'X12' 36 ft²
Deck 14'X30' 196 ft²
Upper Size ft²
Bedroom 1 13'X18' 169 ft²
Bedroom 2 12'X10' 144 ft²
Bedroom 3 13'X12' 169 ft²
Bedroom 4 11'X11' 121 ft²
Walk In Closet 6'X9' 36 ft²
Lower Size ft²
Bedroom 5 12'X11' 144 ft²
Family Room 34'X19' 1156 ft²
Utility Room 12'X9' 144 ft²
Storage 10'X7' 100 ft²

LOT

  • Acres: N/A

  • Lot Size Dim.: 97'X147'X66'X4'X152'

  • Longitude: 44.7333

  • Latitude: -93.3604

  • Zoning: Residential-Single Family

FINANCIAL & TAXES

  • Tax year: 2025

  • Tax annual amount: $5,054

MISCELLANEOUS

  • Fuel System: N/A

  • Sewer System: City Sewer/Connected

  • Water System: City Water/Connected

ADDITIONAL INFORMATION

  • MLS#: NST7763667

  • Listing Brokerage: Real Broker, LLC Agency Icon

ID: 3871951
Published: July 10, 2025
Last Update: July 10, 2025
Views: 14