13340 CADOGAN WAY

13340 Cadogan Way, Rosemount, 55068, MN

FEATURES

DETAILS

Welcome home to Dunmore of Rosemount. School District 196. New construction brought to you by local builder, Paragon homes. The Cleary plan features a unique layout with mudroom and a separate laundry off the garage. You then head upstairs to the open concept Main level with plenty of natural light through the windows, granite/quartz countertops and stainless steel appliances. The Cleary Split Level offers 4 bedrooms, 3 baths, owners suite with attached 3/4 bath and walk in closet. The Dunmore of Rosemount neighborhood is conveniently located near Downtown Rosemount, walking trails that connect with Lebanon Hills and a future park within the neighborhood. Reach out for more details or see our completed Cleary Model at 13310 Cadogan Way.

INTERIOR

  • Bedrooms: 4

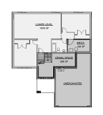
  • Fin ft² / Living Area: 2493 ft²

  • Below Ground Living: 1059ft²

  • Bathrooms: 3

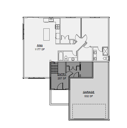
  • Above Ground Living: 1434ft²

  • Basement Details: Full, Concrete, Sump Pump,

  • Appliances Included:

EXTERIOR

  • Air Conditioning: Central Air

  • Garage Spaces: 2

  • Construction Materials: N/A

  • Foundation Size: 1434ft²

  • Unit Amenities:

    • Vaulted Ceiling(s)
    • Washer/Dryer Hookup
    • Paneled Doors
    • Kitchen Center Island
    • Primary Bedroom Walk-In Closet
  • Heating System:

    • Forced Air

ROOMS

Main Size ft²
Living Room 17x12 289 ft²
Dining Room 13x9 169 ft²
Kitchen 13x9 169 ft²
Bedroom 1 14x15 196 ft²
Bedroom 2 11x10 121 ft²
Mud Room 7.5 x 8.5 62.42 ft²
Laundry 6.5 x 8.5 54.01 ft²
Foyer 10 x 8 100 ft²
Lower Size ft²
Family Room 15x27 225 ft²
Bedroom 3 13x13 169 ft²
Bedroom 4 11x15 121 ft²

LOT

  • Acres: N/A

  • Lot Size Dim.: 60x141x60x139

  • Longitude: 44.7554

  • Latitude: -93.124

  • Zoning: Residential-Single Family

FINANCIAL & TAXES

  • Tax year: 2024

  • Tax annual amount: $1,446

MISCELLANEOUS

  • Fuel System: N/A

  • Sewer System: City Sewer/Connected

  • Water System: City Water/Connected

ADDITIONAL INFORMATION

  • MLS#: NST7754344

  • Listing Brokerage: Edina Realty, Inc. Agency Icon

ID: 3746203
Published: June 05, 2025
Last Update: June 05, 2025
Views: 28