12114 AURORA AVENUE

12114 Aurora Avenue, Rogers, 55374, MN

FEATURES

DETAILS

Don't miss the opportunity to own this beautifully designed Springfield home, currently under construction and available for a quick move-in by late November. This Craftsman-inspired home offers exceptional curb appeal with elegant stone accents and a spacious 3-car garage. Step inside to a bright and open layout featuring a striking two-story foyer, a private flex room with french glass doors—ideal for a home office or study. Featuring a Great room with an electric fireplace, perfect for cozy evenings, a morning room attached to the kitchen, and a stunning gourmet kitchen with an oversized island, white cabinetry, stainless steel appliances, and a pantry—all included! Upstairs, retreat to the luxurious primary suite, complete with a soaking tub, separate shower, and a walk-in closet. Enjoy outdoor living in your large backyard and take advantage of the unfinished lower level—ready for your personal touch and future expansion. This home combines timeless style with modern convenience. Nestled in the heart of Skye Meadows, this home backs onto scenic natural views and is surrounded by thoughtfully planned community features, including picturesque walking trails, Nature-filled ponds and wetlands, a future city park with recreational areas and easy access to the Twin Cities for work or play. Schedule your tour today and make the Springfield your new home. Ask how you can save up to $5,000 in closing costs with our Seller’s Preferred Lender!

INTERIOR

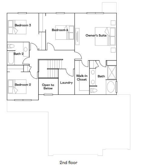
  • Bedrooms: 4

  • Fin ft² / Living Area: 2609 ft²

  • Below Ground Living: N/A

  • Bathrooms: 3

  • Above Ground Living: 2609ft²

  • Basement Details: Full, Unfinished,

  • Appliances Included:

EXTERIOR

  • Air Conditioning: Central Air

  • Garage Spaces: 3

  • Construction Materials: N/A

  • Foundation Size: 1214ft²

  • Unit Amenities:

    • Walk-In Closet
    • Washer/Dryer Hookup
    • In-Ground Sprinkler
    • Kitchen Center Island
    • French Doors
  • Heating System:

    • Forced Air

ROOMS

Main Size ft²
Great Room 20x16 400 ft²
Informal Dining Room 13x10 169 ft²
Kitchen 10x16 100 ft²
Bedroom 1 17x15 289 ft²
Bedroom 2 11x10 121 ft²
Bedroom 3 11x10 121 ft²
Flex Room 12x11 144 ft²
Upper Size ft²
Laundry 9x6 81 ft²
Bedroom 4 13x10 169 ft²

LOT

  • Acres: N/A

  • Lot Size Dim.: TBD

  • Longitude: 45.1747

  • Latitude: -93.5635

  • Zoning: Residential-Single Family

FINANCIAL & TAXES

  • Tax year: 2025

  • Tax annual amount: N/A

MISCELLANEOUS

  • Fuel System: N/A

  • Sewer System: City Sewer/Connected

  • Water System: City Water/Connected

ADDITIONAL INFORMATION

  • MLS#: NST7809983

  • Listing Brokerage: Lennar Sales Corp Agency Icon

ID: 4170675
Published: October 01, 2025
Last Update: October 01, 2025
Views: 1